3
2
Overview
3 Bedroom Detached House for sale in Peregrine Road, Waltham Abbey
ROFFEYS presents this most attractive detached residence with three well-proportioned bedrooms, occupying a prominent corner plot with double-width driveway and detached garage. Built during the early-mid 1990s as part of a private development, the area remains popular with discerning buyers.
ROFFEYS presents this most attractive, modern detached residence with three well-proportioned bedrooms, occupying a prominent corner plot affording a double-width driveway and detached garage. The property was constructed during the early-mid 1990s as part of a private development which continues to attract discerning buyers, and it is now available as a chain-free sale exclusively through ROFFEYS.
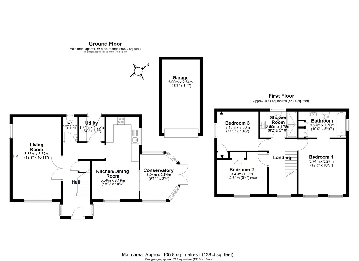
The accommodation on the first floor includes an 'L-shaped landing and three bedrooms (two doubles and one large single), with the main bedroom having an en-suite bathroom. There is also a stylish, tiled family shower room.
To the ground floor the...
Read more
ROFFEYS presents this most attractive, modern detached residence with three well-proportioned bedrooms, occupying a prominent corner plot affording a double-width driveway and detached garage. The property was constructed during the early-mid 1990s as part of a private development which continues to attract discerning buyers, and it is now available as a chain-free sale exclusively through ROFFEYS.
The accommodation on the first floor includes an 'L-shaped landing and three bedrooms (two doubles and one large single), with the main bedroom having an en-suite bathroom. There is also a stylish, tiled family shower room.
To the ground floor the accommodation includes an attractive living room enjoying a double aspect with windows to both the front and side elevations, utility room and guest cloakroom/wc having a modern white suite and wall tiling. Additionally, there is a good-sized fitted kitchen/diner with traditional-style units and granite worktops. Adjoining this space is a double-glazed conservatory providing access to the side garden area.
Externally, there are gardens on three sides of the property including the main area of garden to the northeast which is mostly walled to its perimeter. Adjacent to this area is a detached garage with private driveway providing additional parking space for two cars. Attractively displayed soft landscaping with shrubs and decorative gravel further enhances the property's kerb-appeal.
Please note: All dimensions and areas shown are approximate and should not be relied upon for floor coverings, furniture and fittings. Floorplans are indicative only.
ENTRANCE HALL 16' 3" x 6' 2" (4.95m x 1.88m)
LIVING ROOM 18' 3" x 10' 11" (5.56m x 3.33m)
KITCHEN / DINING ROOM 18' 3" x 10' 6" max. (5.56m x 3.2m)
UTILITY ROOM 5' 8" x 5' 5" (1.73m x 1.65m)
GUEST CLOAKS / WC 5' 5" x 3' 4" (1.65m x 1.02m)
CONSERVATORY 9' 11" x 8' 4" (3.02m x 2.54m)
FIRST FLOOR - LANDING 12' 3" x 6' 3" (3.73m x 1.91m)
BEDROOM ONE 12' 3" x 10' 9" (3.73m x 3.28m)
EN-SUITE BATHROOM 10' 9" x 5' 10" (3.28m x 1.78m)
BEDROOM TWO 11' 3" x 9' 4" max. (3.43m x 2.84m)
BEDROOM THREE 11' 3" x 10' 6" (3.43m x 3.2m)
SHOWER ROOM 8' 2" x 5' 10" (2.49m x 1.78m)
EXTERIOR:-
SIDE GARDEN 39' 4" x 26' 2" (12m x 8m) approx.
DETACHED GARAGE 16' 5" x 8' 4" (5m x 2.54m) external
PARKING FOR TWO CARS
FRONTAGE 88' (26.82m) approx.
RETURN FRONTAGE 32' (10m ) approx.
ADDITIONAL INFORMATION:-
Tenure: Freehold
Council Tax Band: 'F'
Borough: Epping Forest
Utilities: Mains gas, electricity, sewerage, water
Read less
Key Info
- Modern detached residence
- Three good-sized bedrooms
- Bathroom and en-suite shower
- Fitted kitchen with dining area
- Utility room + cloaks/wc
- Comfortable living space
- Detached garage and parking
- Prime corner plot
- Chain-free sale
- Exclusive to ROFFEYS
Media