Book a Property Valuation
This property has been removed by the agent. It may now have been sold or temporarily taken off the market.
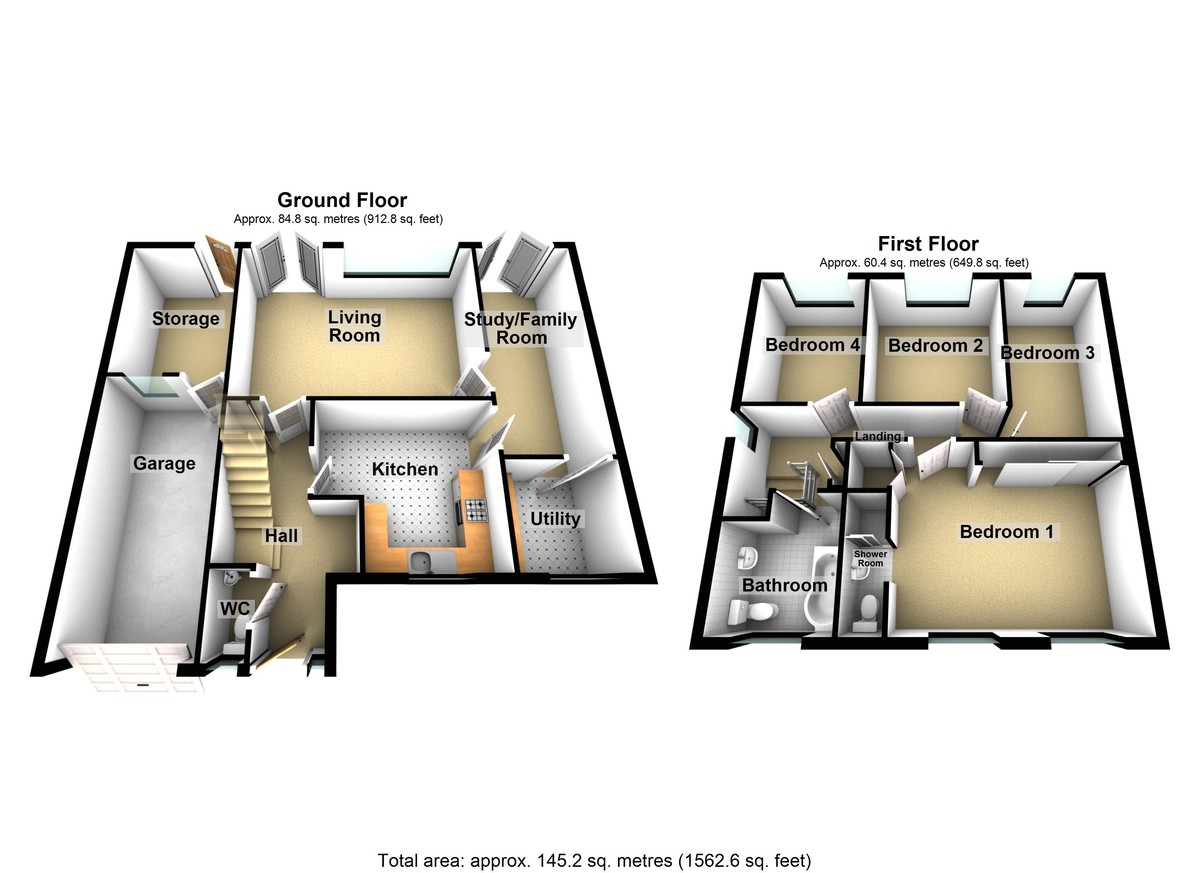
Exclusive to ROFFEYS. This well-maintained detached residence with four double bedrooms and two bathrooms, including en-suite to the fitted main bedroom, offers well-presented accommodation throughout having a gross internal area of approximately 1600 sq.ft.(148 sq.m.).The accommodation is freshly decorated in a mainly white finish combined with neutral hues, creating a soothing interior design greatly enhanced by an abundance of natural light.The ground floor accommodation includes a modern k...
We have found these similar properties.

Kestrel Road, Waltham Abbey

£545,000

4 Bedroom Detached House

More details...

River Way, Loughton

£525,000

3 Bedroom End of Terrace House

More details...

Honey Lane, Waltham Abbey

£485,000

3 Bedroom Detached House

More details...

Mount End, Theydon Mount

£1,650,000

4 Bedroom Detached House

More details...

Mount End, Theydon Mount

£1,750,000

4 Bedroom Detached House

More details...

Contact us

About us

'As dedicated property professionals, Roffeys is proud to have served local communities throughout the towns and villages of West Essex and East Hertfordshire since 1988'


Update Cookies Preferences